Este site utiliza cookies para permitir a mudança de língua e o armazenamento dos seus imóveis favoritos. Ao utilizar este site, concorda que o mesmo utilize cookies.

lote de Terreno Faro

195.000€




Referência

MR185

Natureza

Venda

Tipo de Imóvel

Terreno

Subtipo de Imóvel

Lote Moradia

Tipologia

Não se aplica

Estado

Razoável

Certificado energético

Isento


Distrito

Faro

Concelho

Faro

Freguesia

Conceição e Estoi

Código Postal

8005


Área Útil

460 m2

Área Bruta

0 m2

Área de Terreno

460 m2



Contactar Imobiliária

*Preenchimento obrigatório
Ao clicar em 'Enviar', declara que aceita a nossa Política de Privacidade.
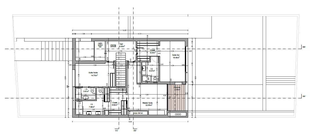
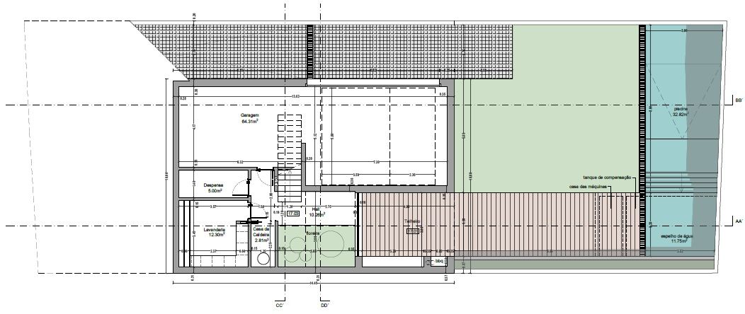
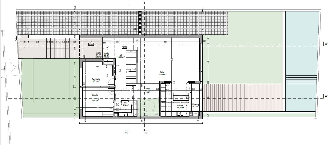
Lote de terreno para construção de moradia T4+1,com projecto aprovado, no sítio do Chelote, em Faro. 
Licença pronta a levantar para construção.
Área de Implantação: 150m2
Área total de construção: 390m2

Projecto: 
- Construção de moradia unifamiliar. No rés-do-chão temos a sala, cozinha, quarto, escritório e wc. 
- O 1º andar inclui, três suites; 
- Na cave temos uma garagem para 3 viaturas, arrecadação e lavandaria. 

Temos oportunidade de tratar da construção do imóvel, no tipo de construção moderna denominada 'zero energia', onde através do método e da qualidade de construção se reduzem ao máximo a perda de energia e o gasto de energia da rede, veja abaixo para maior detalhe.
Preço orçamentado para o projecto aprovado de 275 m2 habitáveis (390m2 brutos) de 354000 eur, chave na mão, num prazo de 1 ano.

GESTOR DO IMÓVEL: Michel Ribeiro

Construa com Inteligência: Muroblock + Energia Zero = Futuro Sustentável
Você está pronto para elevar o padrão da construção civil? Conheça o Muroblock, um sistema construtivo inovador que une rapidez, economia e sustentabilidade, e que se integra perfeitamente ao conceito revolucionário de construção de energia zero.

O que é o Muroblock?
O Muroblock é um sistema de blocos estruturais modulares e encaixáveis que proporciona:

Redução de até 70% no tempo de obra

Menor geração de resíduos

Precisão milimétrica na execução

Canteiro limpo e organizado

Economia de até 30% em custos totais

Feito com materiais de alta durabilidade, o Muroblock garante uma estrutura sólida, térmica e acústica superior às construções convencionais.

Energia Zero: Um novo padrão de construção
Um edifício de energia zero (ou Zero Energy Building) é aquele que consome tanta energia quanto é capaz de gerar geralmente com fontes renováveis como painéis solares. Combinado ao Muroblock, esse conceito se torna ainda mais acessível e eficiente.

Vantagens da construção energia zero:

Autonomia energética

Conta de luz zero ou próxima de zero

Maior valorização do imóvel

Conforto térmico e eficiência energética

Contribuição direta à preservação ambiental

A Combinação Perfeita
Ao optar por construir com Muroblock dentro do conceito energia zero, você está investindo em:

Tecnologia construtiva de ponta

Redução de custos a curto, médio e longo prazo

Responsabilidade ambiental

Imóveis mais eficientes, modernos e valorizados

Seja para sua casa, empresa ou empreendimento, o futuro da construção está aqui e ele é modular, limpo e sustentável.

Construa com Muroblock. Viva com energia zero.
Entre em contato agora e descubra como transformar seu projeto em um exemplo de inovação e eficiência! 
Categoria Energética: Isento 

ref:BLMTRPAR_181.
Geral
VistasCampo:Sim
Exposição SolarNorte:Sim
InfraestruturasConcluídas:Sim
InfraestruturasIluminação de rua:Sim
TerrenoResidencial:Sim
AcessosAsfalto:Sim
AcessosUrbano:Sim
Zona
AcessosCalçada:Sim

Este imóvel não tem áreas definidas.